Beschreibung
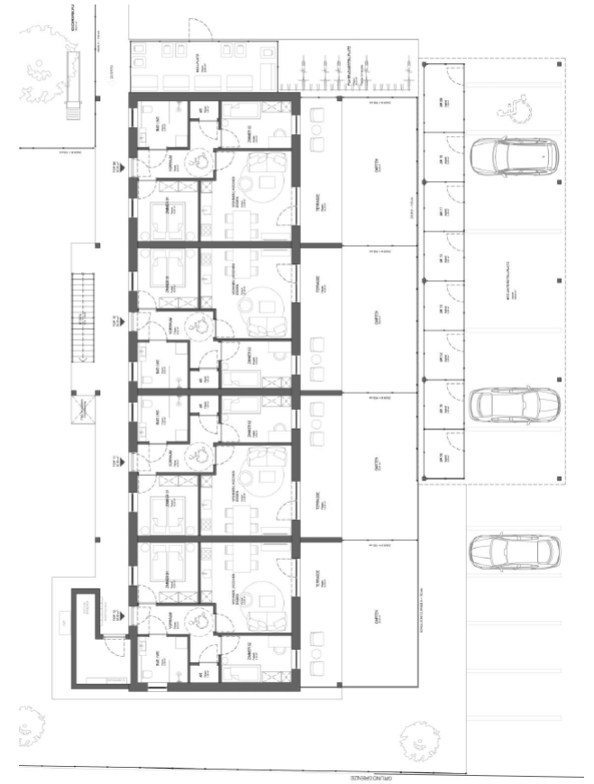
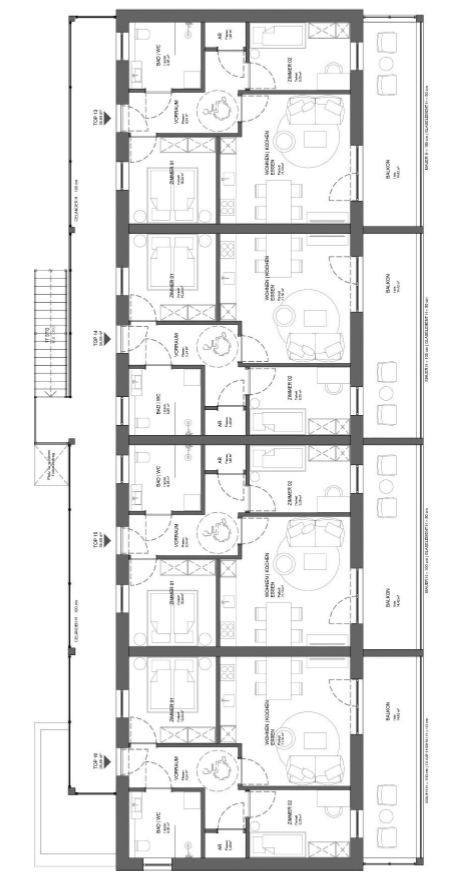
Am Standort dieses Projekts entstehen vier Wohnhäuser mit je acht Wohneinheiten zu 56,68m². Die Erdgeschosswohnungen verfügen über einen eingezäunten Eigengarten mit Terrasse. Die Wohnungen im 1. OG verfügen über eine Loggia mit je 16m². Pro Wohnung wird ein Kfz-Unterstellplatz samt Abstellraum (=Kellerersatzraum) mit ca. 6m² errichtet. Jede Wohnung verfügt über einen zweiten nicht überdachten Kfz-Abstellplatz.Die Heizung der Wohnhäuser erfolgt über Luftwärmepumpen. Eine Photovoltaikanlage mit 8kWp wird errichtet, um ein effizientes Heizen der Luftwärmepumpe zu ermöglichen. Die gesamte Wohnanlage sowie die Innenwände werden in Ziegel-massivbauweise errichtet. Das Objekt befindet sich auf einem ebenen und sonnigen Grundstück in der Gemeinde Strass in der Südsteiermark im Ortsteil Murfeld. Mit dem Bahnhof Spielfeld und der Autobahnanschlussstelle Gersdorf, ist Murfeld speziell auch für Pendler:innen ein ideal gelegener Ort. – Graz erreichen Sie mit dem PKW in ca. 30 Minuten und mit der S-Bahn in 45 Minuten. – Leibnitz erreichen Sie mit dem PKW und mit der S- Bahn in max. zehn Minuten. Dank der guten Anbindung an das Verkehrsnetz sowie der florierenden Wirtschaft in Leibnitz und Umgebung, ist die Wertsicherung der Wohnungen garantiert.
KAUFNEBENKOSTEN
- Grunderwerbsteuer: 3,5 % des Kaufpreises
- Grundbucheintragung: 1,1 % des Kaufpreises
- Treuhandschaft/Notar: 1,5 % des Kaufpreises (Notariat Kirchbach, Herr Mag. Ing. Franz Valentin Löffler)
- Allfällige Aufwände bezüglich der Treuhandschaft für die Finanzierung sind mit dem Vertragserrichter zu klären und zu vergüten.
KAUFABWICKLUNG
- Bei Optionsvertragsunterzeichnung wird eine Anzahlung von EUR 20.000,- fällig.
- Die Bezahlung der Restsumme auf den Kaufpreis erfolgt in Etappen lt. Baufortschritt.
- Nach Einlangen des gesamten Kaufpreises am Notartreuhandkonto erfolgt die Übergabe des Vertragsgegenstandes.
- Durch ein Übergabeprotokoll gibt der Käufer/die Käuferin den Geldbetrag frei!
- Im Kaufpreis enthalten sind der Aufschließungsbeitrag an die Gemeinde, die Wasseranschlussgebühr, die Kanalanschlussgebühr und die Stromleitung bis zum Zählerkasten.

Übersicht
3
2
1
2
57 m2
Bauprojekt, Wohnung
Ausstattung und Eigenscahften
Karte
Grundrisse
Dateianhänge
In der Nähe
Explore nearby amenities to precisely locate your property and identify surrounding conveniences, providing a comprehensive overview of the living environment and the property's convenience.
Kontaktieren Sie uns

Marcel Schuster
marcel@schoenwetter-bau.at
Suche
Preis von €100 bis €5.000.000Fläche von 0 m² bis 1.000m²Eigenschaften
Neueste Immobilien
Kein Artikel gefunden






